戸建 青森市
物件詳細Details
戸建 久須志2丁目貸家
情報更新日:2026-03-10
広々6DK 大家族にもおすすめ 浪館通りまで徒歩8分
- 所在地
- 青森県 青森市 久須志2丁目
- 種別/間取り
- 戸建/6DK
- 月額賃料
- 72,000円/月
- 専有面積
- 186㎡
- バルコニー面積
- ─
- 共益費
- ─
- 管理費
- ─
- 敷金
- ─
- 礼金
- ─
本物件の内容や画像等は全て現況優先となります。
各画像は参考図となります。
| 交通機関 |
青森市営バス 古川中学校前 徒歩10分 青い森鉄道 青森駅徒歩20分 |
||
|---|---|---|---|
| 学区 | 青森市立千刈小学校(0.5km)・青森市立古川中学校(0.5km) | ||
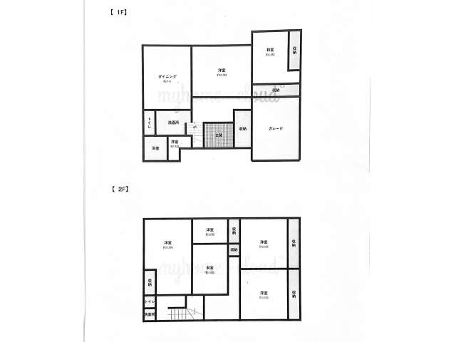
| 詳細間取 | 6DK (1階:洋10帖×1、1階:和6.5帖×1、2階:洋11帖×1、2階:和6帖×1、2階:洋8帖×2、1階:DK10帖) | ||
| 周辺施設 | ローソン青森久須志一丁目店:344m、ハッピードラッグ青森久須志店:817m | ||
| 駐車場 | 敷地内 無料 | 建物構造 | 木造 地上2階建 |
| 駐車場複数台 | 不可 | 主要採光方向 | 不明 |
| 仲介料 | 79,200円 | 周辺環境 | |
| 保険又は共済 | 要加入 | 入居可能日 | 2026/03/下旬 |
| 保証金 | 築年月 | 昭和43年5月 | |
| 権利金 | 取引態様 | 仲介 | |
| 保証会社 | 利用必須 エポス 初回総賃料の80%、月額1% | ||
| その他費用 | |||
| トイレ | 洋式 独立 水洗 暖房便座 洗浄機能付 | 風呂 | 有 シャワー有 給湯式 |
| 設備 | 上水道設備(公営) 下水道設備 給湯(石油) 洗面化粧台(独立)(シャワー付) LPガス 洗濯機置場 システムキッチン 照明器具 車庫 フローリング | ||
| 備考 | 保険加入2年間 保険料(参考) 18,000円 ペット相談可 青森市 賃貸 貸家 ペット可 子供可 普通賃貸借 ※同業他社による客付け不可 | ||
| 取扱業者 |
㈱Rise(ライズ)不動産 青森県知事免許(1)第3667号 青森県青森市大野金沢13-19 TEL:017-718-7715 FAX:017-718-8587 (公社)全日本不動産協会会員 東北地区不動産公正取引協議会加盟事業者 |
||





















