一戸建 黒石市
物件詳細Details
一戸建 黒石市袋富田売家
情報更新日:2026-03-13
風情ある町並み 開放的な吹抜けデザイン階段が魅力的 黒石市でワンランク上の暮らしを
- 所在地
- 青森県 黒石市 袋富田
- 価格
- 1,400万円
- 間取り
- 5LDK
- 築年数
- 平成11年10月
- 建物延面積
- 200.39㎡
- 敷地面積
- 244.12㎡ (公簿)
本物件の内容や画像等は全て現況優先となります。
各画像は参考図となります。
| 交通機関 | ー ーー | ||
|---|---|---|---|
| 学区 | |||
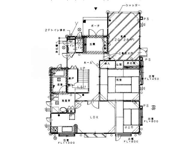
| 詳細間取 | 5LDK (1階:和10帖×1、2階:洋10帖×1、2階:洋8帖×2、2階:洋6帖×1、1階:LDK20帖) | ||
| 周辺施設 | |||
| 周辺環境 | その他費用 | ||
| 総戸数 | 1戸 | 建物構造 | 木造 |
| 築年月 | 平成11年10月 | 主要採光方向 | 不明 |
| 駐車場 | 敷地内 可 | 地勢 | 平坦 |
| 駐車場複数台 | 可1台まで | 土地権利 | 所有権 |
| 用途地域 | 用途指定なし | 国土法届 | 不要 |
| 取引態様 | 専属専任媒介 | 現況 | 空家 |
| 引渡 | 即可 | 建ぺい率/容積率 | 70% / 200% |
| 地目 | 宅地 | 都市計画 | |
| セットバック | 無 | 接道状況 | 一方(公道・北東側) |
| 私道負担 | ─ / ─ | 建築確認番号 | |
| 法令上の制限 | |||
| 設備 | トイレ(洋式 独立 ) 上水道設備(公営) 下水道設備(浄化槽) 給湯(石油) 洗面化粧台(独立)(シャワー付) IHヒーター(3口) インターホン エアコン パネルヒーター 下駄箱 洗濯機置場 システムキッチン ウォークインクローゼット カーテンレール 照明器具 車庫 フローリング クローゼット 郵便受 | ||
| 備考 | 青森県 黒石市 売家 中古物件 | ||
| 取扱業者 |
㈱Rise(ライズ)不動産 青森県知事免許(1)第3667号 青森県青森市大野金沢13-19 TEL:017-718-7715 FAX:017-718-8587 (公社)全日本不動産協会会員 東北地区不動産公正取引協議会加盟事業者 |
||








































